這,是一個萬眾創新的時代
這,是一個放眼未來的時代
“5.28金橋創新節”
盛大開幕
~~~
我們渴望邂逅才華橫溢的你
帶著前瞻與遠見
帶著充滿未來感的設計
來到我們身邊
“金橋空間設計大賽”火熱報名中
閃耀舞臺,只等你來





敲~~黑~~板~~
1:比賽目的:
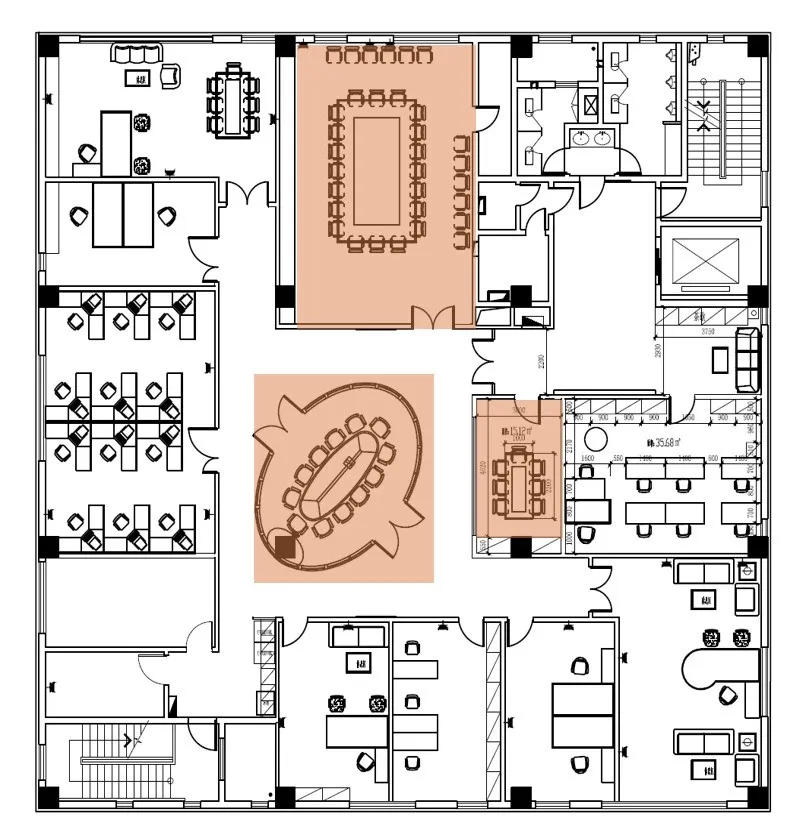
總部25號樓4樓3間會議室改造;
集思廣益、考察金橋設計人員的業務能力、調動內部人員參與性;
2:參賽資格:
全公司人員(除高級設計人員);
3:比賽時間:
2020年6月20~21日;
4:獎勵方式:
命名權:優勝者有權為會議室命名(新天地也好,黑木崖也罷,你說叫啥就叫啥
);
現金大獎:不給發錢的獎勵都是耍流氓,所以外加總獎金一萬元,歐耶~~~
永久居住權:獲獎者的參賽照片將取得該會議室的“永久居住權”
;
5:參賽團隊:
每組2-5人,可跨部門、跨性別、跨地域自由組合(劃重點:跨性別
);
6:比賽方式:
比賽當天每組團隊需派至少一人來到上海總部進行設計方案的匯報,其余組員金橋e享連線;
7:參賽方式:
郵件報名,郵件內容需寫明團隊名稱、隊長及組員;
劃~~重~~點~~
設計方案一旦獲獎,將切實用于25號樓4樓會議室的改造施工,如假包換,咱絕不“紙上談兵”,Come on,ZAO 起來 

~~~
活動負責人:熊卿
Email:xiongqing@shgbit.com
TEL:13916166762
PS:找她,找她,找她~~~~
